Verkocht

Zwaag

Ridderspoor 80

1689 TH

Zwaag

€360.000,-

Ligging

Aan water, Aan rustige weg, In woonwijk, Open ligging

Bouwjaar

1985

Status

Verkocht

Kenmerken

Overdracht

Vraagprijs

€360.000,- k.k.

Aanvaarding

in-overleg

Status

Verkocht

Indeling

Kamers

5

Verdiepingen

2

Slaapkamers

4

Bouw

Ligging

Aan water, Aan rustige weg, In woonwijk, Open ligging

Bouwjaar

1985

Voorzieningen

mecha-ventilatie, tv-kabel

Buiten

Ligging achtertuin

Zuidwesten

Oppervlakte tuin

78 m2

Oppervlakte en inhoud

Woonoppervlakte

132 m2

Inhoud

500 m3

Energie

Warm water

cv-ketel

Isolatie

volledige-isolatie

Bekijk alle kenmerken

Omschrijving

Uw (t)huis begint bij ons!

Deze eigenaar begint aan een nieuw avontuur en gaat daarom zijn thuis verkopen. Het is tijd voor iemand anders om hier een thuis van te maken! Deze eengezinswoning heeft veel ruimte, een heerlijke diepe en zonnige tuin, de beschikking over een garage en bevindt zich ook nog eens op een centrale locatie! Wat wil je nog meer!?

De woning is gebouwd in 1985 en in die jaren uitstekend onderhouden. In de tussentijd voorzien van grotendeels kunststof kozijnen met HR++ beglazing en een royale kunststof dakkapel aan de achterzijde. Keurig netjes afgewerkt en echt een woning die je met minimale aanpassingen snel kunt betrekken! Ideaal is ook nog eens de royale achtertuin met open ligging en die uitermate gunstig is gelegen op de zon.

De centrale ligging van de woning kenmerkt zich door de diverse voorzieningen op korte afstand. Zo zit je snel op de provinciale weg of de snelweg A7. Ook zijn bijvoorbeeld een supermarkt of het centrum van Hoorn op korte afstand gelegen. De bushalte ligt op steenworp afstand, maar er zijn in Hoorn ook twee NS-stations met goede verbindingen naar bijvoorbeeld Amsterdam of Alkmaar.

INDELING
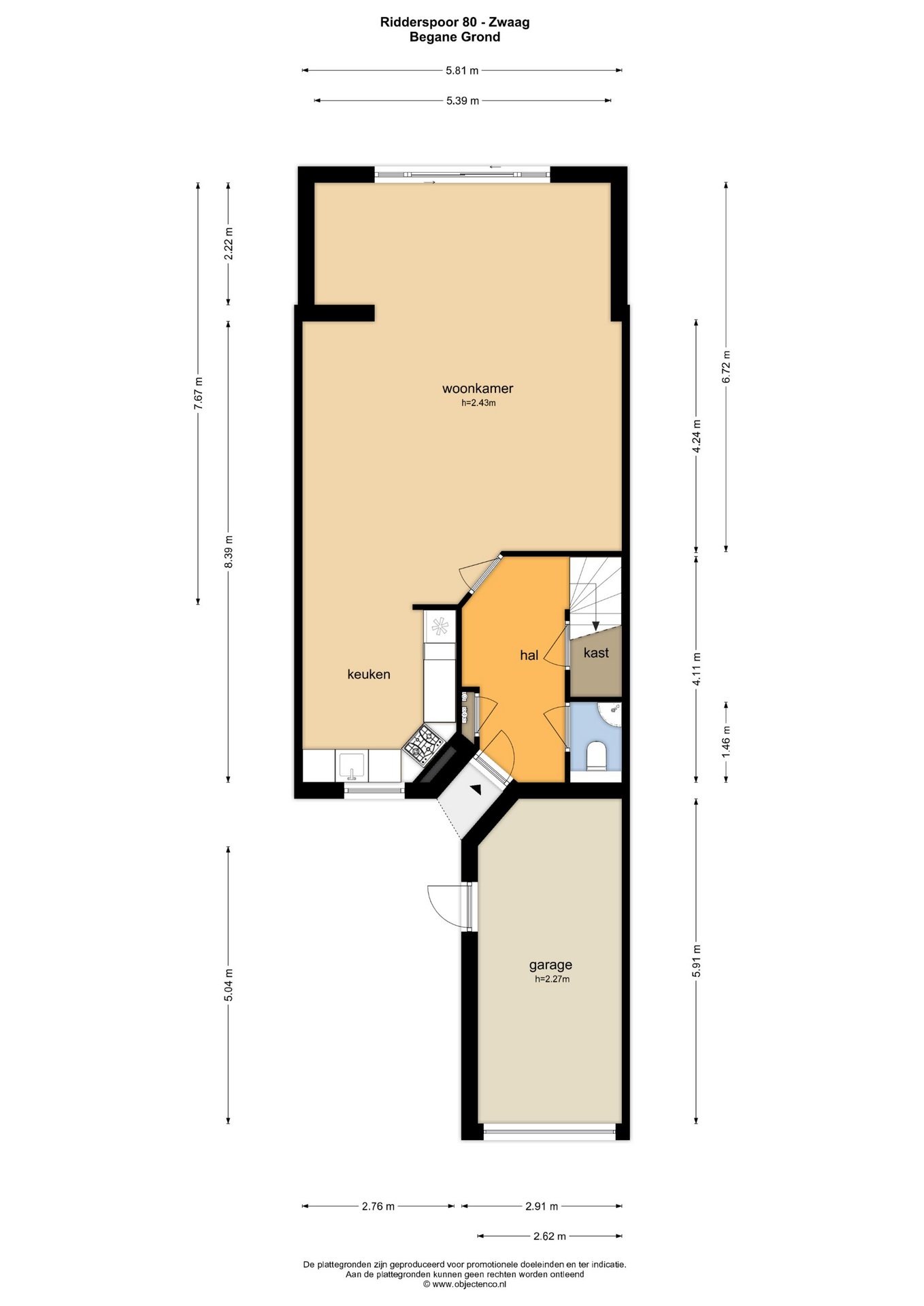
Begane grond: Entree met trapopgang naar 1e verdieping en trapkast, meterkast (14 groepen, 1 krachtgroep en 3 aardlekschakelaars), luxe betegelde toilet voorzien van wandcloset en fonteintje, open nette keuken in hoekopstelling voorzien van diverse inbouwapparatuur en hardstenen aanrechtblad en een tuingerichte uitgebouwde woonkamer voorzien van schuifpui naar achtererf. De hele begane grond is voorzien van tegelvloer met vloerverwarming.

Aan de voorzijde is daarnaast een aangebouwde garage gesitueerd welke is voorzien van separate deur en een geïsoleerde elektrische garagedeur. Verder voorzien van elektra en een eigen onderverdeelinrichting met 4 groepen, 1 krachtgroep en 2 aardlekschakelaars. Het is daardoor een hele kleine moeite om bijvoorbeeld een oplaadpunt voor een elektrische auto aan te brengen en de auto op te laden op eigen erf.

1e verdieping: Overloop met vaste trap naar 2e verdieping, voorslaapkamer, twee achterslaapkamers voorzien van kunststof dakkapel en een nette betegelde badkamer voorzien badmeubel met dubbele wastafel, wandcloset en douchecabine.

2e verdieping: Bergzolder voorzien van ventilatie unit, CV ketel (Intergas uit 2021) en wasmachine aansluiting.

Een heerlijke woning waar je jezelf direct thuis zult voelen! Ben je benieuwd of dit jouw nieuwe (t)huis kan worden? Maak dan een afspraak voor een bezichtiging en we nemen je graag mee voor een rondleiding!

Bekijk alle kenmerken

Foto's

40+ 40+ 40+ 40+ 40+ 40+ 40+ 40+ 40+ 40+ 40+ 40+ 40+ 40+ 40+ 40+ 40+ 40+ 40+ 40+ 40+ 40+ 40+ 40+ 40+ 40+ 40+ 40+ 40+ 40+ 40+ 40+ 40+ 40+ 40+ 40+ 40+ 40+ 40+ 40+ 40+ 40+ 40+ 40+ 40+

Plattegronden

1+ 1+ 1+ 1+ 1+ 1+

Woningzoekende

Meld je aan als woningzoekende!

Als eerste op de hoogte van het nieuwe woningaanbod van Braas & Partners!

Aanmelden woningzoekende Meer informatie

Hypotheek

Hoeveel kun u maximaal lenen?

Advies op maat, voor elke situatie.

Onafhankelijk hypotheekadvies Meer informatie