Beschikbaar

Heerhugowaard

Het Schild 19

1704 EK

Heerhugowaard

€499000

Ligging

Aan water, In woonwijk, Open ligging

Bouwjaar

2023

Status

Beschikbaar

Plan een bezichtiging

Kenmerken

Overdracht

Vraagprijs

€499000 k.k.

Aanvaarding

in-overleg

Status

Beschikbaar

Indeling

Kamers

3

Slaapkamers

2

Bouw

Ligging

Aan water, In woonwijk, Open ligging

Bouwjaar

2023

Buiten

Ligging achtertuin

NOORD

Oppervlakte tuin

32 m2

Oppervlakte en inhoud

Woonoppervlakte

107 m2

Inhoud

433 m3

Energie

Bekijk alle kenmerken

Omschrijving

Uw (t)huis begint bij ons!

Modern, luxe en duurzaam wonen aan het water!

Aan Het Schild 19 in Heerhugowaard ligt deze recent gebouwde tussenwoning (2023) met een woonoppervlakte van 107 m² en een uitstekend energielabel A++. De woning is luxe afgewerkt en verdeeld over een begane grond en eerste verdieping.

Gelegen in een wijk waar men het echte gemeenschapsgevoel weer voorop stelt. Waar men de sfeer van samen terugbrengt. Een gemeenschap waarin jij je eigen rol kan pakken met een bijdrage aan de moestuin-, dierenweide- of buurtschuurcommissie. Ook onderdeel hiervan is bijvoorbeeld een groenstrook waarbij voor elke woning een apart stukje tuin is gereserveerd. Ideaal voor bijvoorbeeld een eigen of gedeelde moestuin, het kan allebei. Daarnaast is de gezamenlijke buurtschuur ideaal voor buurtactiviteiten of een verjaardag. Geen zin om al die mensen thuis te ontvangen? Geen probleem, dan reserveer je de buurtschuur voor jouw feestje!

Er is een Vereniging van Eigenaren opgericht voor het beheer en onderhoud van de gemeenschappelijke tuinen en buurtschuur. Een gezonde en actieve vereniging welke wordt geleid door de bewoners zelf. De maandelijkse bijdrage is op dit moment € 50,-.

De woning beschikt op de begane grond over een ruime woonkamer met woonkeuken. De woonkamer van 7 meter breed biedt ruimte aan verschillende wensen en is breed genoeg om levensloopbestendig in te richten. Waarbij de serre aan de achterzijde zorgt voor extra licht en leefruimte. En weet je wat deze serre extra leuk maakt? In de serre kun je nog veel eerder en langer genieten van de zomer! De zitkuil met steigerhouten vlonder aan het water biedt een beschutte en geborgen plek met kleurrijke natuurgeluiden. Zowel aan de voor- alsook de achterzijde een heerlijke open ligging. Op de verdieping bevinden zich twee goed bemeten slaapkamers en een moderne badkamer. De gehele woning ook nog eens voorzien van vloerverwarming.

De ligging is in een prettige, moderne woonomgeving met winkels, scholen, kinderopvang en sportvoorzieningen in de directe nabijheid. Ook het centrum van Heerhugowaard, openbaar vervoer en uitvalswegen richting Alkmaar en de Randstad zijn snel en eenvoudig bereikbaar. De directe ligging van de ingang van de wijk aan de autoweg N194 zorgt voor een extra goede bereikbaarheid. Zeer kindvriendelijk met veel groen in de wijk. Ideaal voor opgroeiende (klein)kinderen die zonder al teveel verkeer lekker kunnen spelen.

INDELING
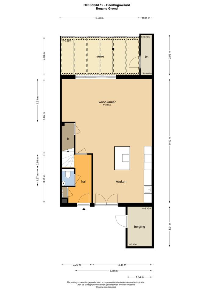
Begane grond: Entree met trapopgang naar 1e verdieping (met lades in trap), meterkast (7 groepen, 1 kookgroep en 3 aardlekschakelaars), luxe deels betegelde toilet met wandcloset en fonteintje, open woonkeuken met openslaande deuren, eiland voorzien van keramiek aanrechtblad, diverse inbouwapparatuur en openslaande deuren naar het voorerf en een tuingerichte woonkamer met trapkast, schuifpui naar het achtererf en een aangebouwde serre en tuinkast. Aan de voorzijde een berging en de gehele begane grond is voorzien van plavuizen (keramiek) met vloerverwarming.

1e verdieping: Overloop, wasruimte voorzien van wasmachine aansluiting en WTW unit (Itho Daalderop uit 2023), voorslaapkamer voorzien van bergruimte achter knieschotten, achterslaapkamer voorzien van bergruimte achter knieschotten en een luxe betegelde badkamer voorzien van badmeubel, wandcloset en douche. De gehele verdieping is voorzien van kurk vloer met vloerverwarming.

Een heerlijke eengezinswoning op een hele fijne locatie! Ben je benieuwd of dit jouw nieuwe thuis kan worden? Maak dan een afspraak voor een bezichtiging en we nemen je graag mee voor een rondleiding!

Bekijk alle kenmerken

Foto's

49+ 49+ 49+ 49+ 49+ 49+ 49+ 49+ 49+ 49+ 49+ 49+ 49+ 49+ 49+ 49+ 49+ 49+ 49+ 49+ 49+ 49+ 49+ 49+ 49+ 49+ 49+ 49+ 49+ 49+ 49+ 49+ 49+ 49+ 49+ 49+ 49+ 49+ 49+ 49+ 49+ 49+ 49+ 49+ 49+ 49+ 49+ 49+ 49+ 49+ 49+ 49+ 49+ 49+

Plattegronden

1+ 1+ 1+ 1+ 1+ 1+

Woningzoekende

Meld je aan als woningzoekende!

Als eerste op de hoogte van het nieuwe woningaanbod van Braas & Partners!

Aanmelden woningzoekende Meer informatie

Hypotheek

Hoeveel kun u maximaal lenen?

Advies op maat, voor elke situatie.

Onafhankelijk hypotheekadvies Meer informatie